




Détail de l'annonce
Découvrez ce superbe appartement de 84 m² niché dans le quartier paisible et verdoyant de Claix. Construit en 2024, il allie modernité et confort au cœur d'un environnement privilégié.
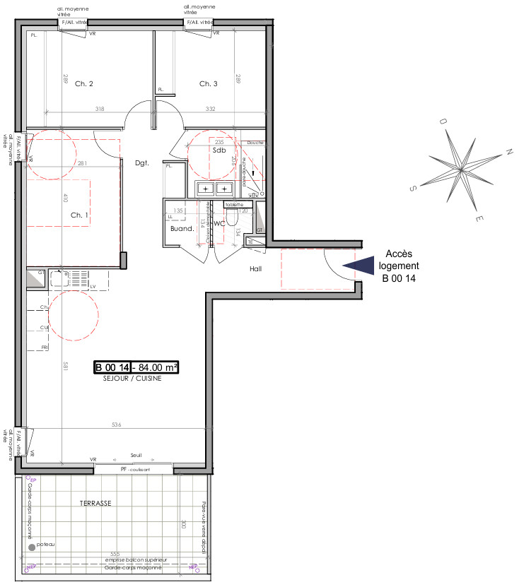
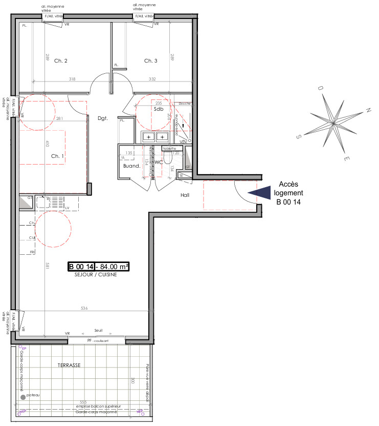
À l'intérieur, vous trouverez 4 pièces spacieuses, incluant trois belles chambres baignées de lumière naturelle. La pièce à vivre, ouverte et conviviale, s’ouvre sur une terrasse offrant une vue dégagée parfaite pour des moments de détente en extérieur. Pour votre confort toute l'année, cet appartement est équipé d'une climatisation de haute qualité.
En parfait état général, l'appartement bénéficie d'un excellent standing et d'une performance énergétique notée C, garantissant une consommation maîtrisée et un impact environnemental réduit. Situé dans une copropriété bien entretenue de 36 lots.
Idéalement placé, cet appartement profite de la quiétude de Claix tout en bénéficiant d'un accès facile aux commodités locales. Vous trouverez des commerces, restaurants et loisirs à proximité immédiate. Les familles apprécieront la proximité des écoles de qualité et des services de transport efficaces reliant Claix aux villes voisines.
Ce bien vous réserve une qualité de vie exceptionnelle, alliant calme résidentiel et proximité des facilités urbaines. Ne manquez pas cette opportunité unique d'accéder à un appartement moderne et chaleureux dans l'un des quartiers les plus prisés de Claix. Contactez-nous pour organiser une visite !
Pourquoi Gustav :
Honoraires réduits déjà inclus dans le prix
Moins cher qu'une agence classique, pouvoir d'achat optimisé
Processus 100 % en ligne et suivi humain jusqu’à la remise des clés
Tapez « Gustav Immobilier » dans votre moteur de recherche pour accéder à l’annonce complète, contacter le vendeur et planifier une visite
Les informations sur les risques auxquels ce bien est exposé sont disponibles sur le site Géorisques : www.georisques.gouv.fr
Les honoraires sont à la charge du vendeur
Contact :
GUSTAV - SIREN : 937738342
Tél - 06 23 74 98 21
Mail - contact@gustav-immobilier.fr
Gustav vous invite à copier / coller le lien suivant pour accéder à des informations plus précises sur le bien, échanger avec le vendeur directement et réserver une visite : https://gustav-immobilier.fr/listing/claix-38640-242
Partager l'annonce
Statistiques de l'annonce
Nombre de vues : 0
Dernière visite le : 25/04 à 04:00
Référence : 19688