
Détail de l'annonce
Exclusivité - Appartement 5 pièces familial – Entièrement rénové
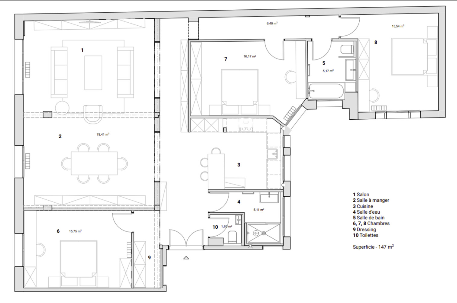
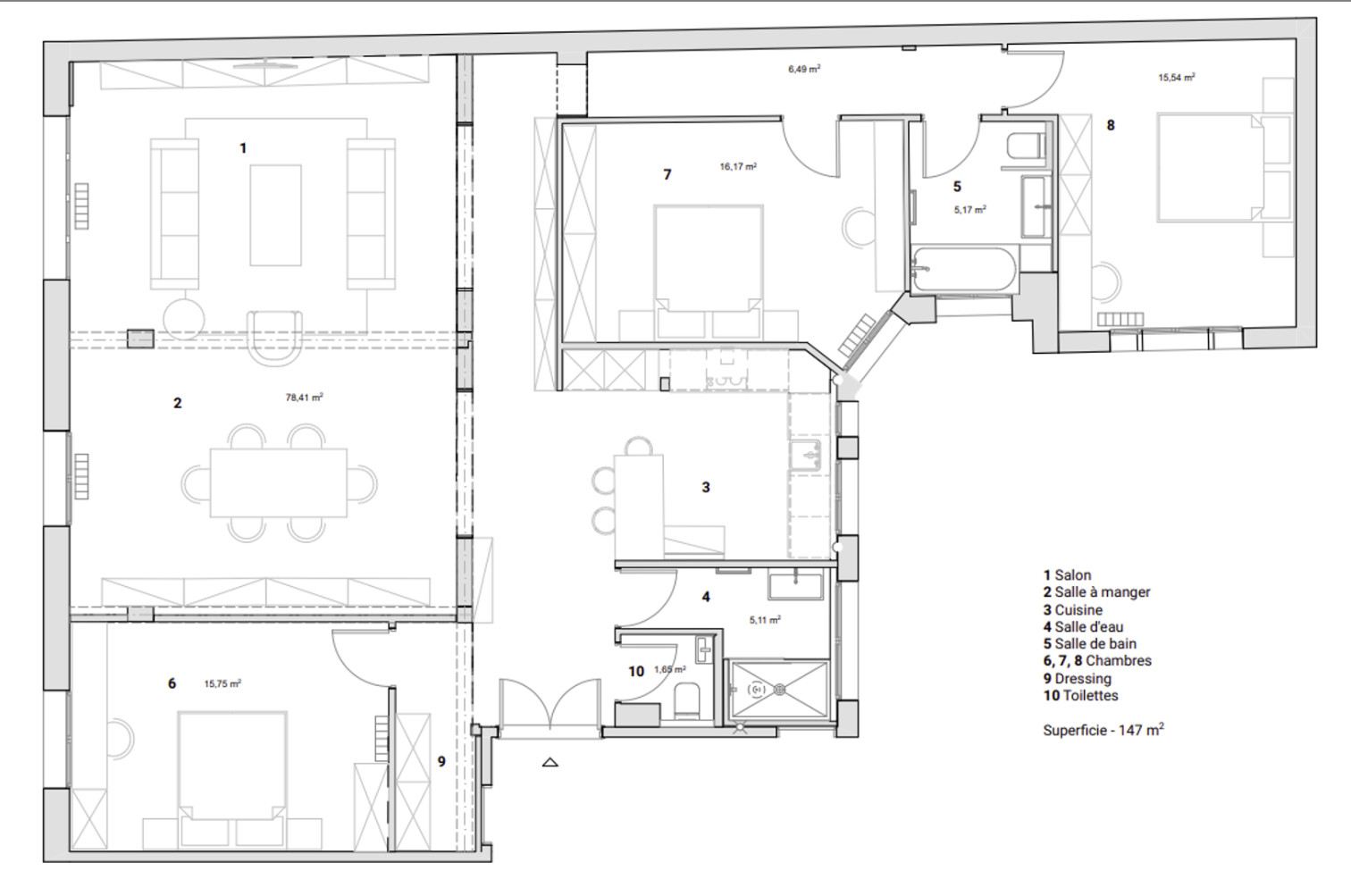
Situé dans un bel immeuble de standing en pierre de taille, rue Saint-Didier, gardienné et sécurisé, dont les parties communes viennent d'être rénovées, venez découvrir ce superbe appartement de 5 pièces d’une surface de 144,40 mètres carrés Carrez. Entièrement rénové, il offre des prestations modernes et de grande qualité.
Plan optimisé, sans perte d''espace, il se compose d’une entrée, d’un vaste double séjour de 78 m2, d’une cuisine indépendante, d’une chambre avec dressing, d’une salle d’eau, de deux autres chambres avec rangements, d’une salle de bains avec WC et de toilettes invités.
Ce bien vous séduira par ses volumes généreux, sa distribution optimisée et le confort d’un appartement entièrement rénové, au sein d’un environnement recherché.
DPE en cours de réalisation.
Partager l'annonce
Statistiques de l'annonce
Nombre de vues : 3
Dernière visite le : 02/03 à 05:48
Référence : 19296