

Détail de l'annonce
Exclusivité - Appartement 4 pièces avec balcon – Entièrement rénové
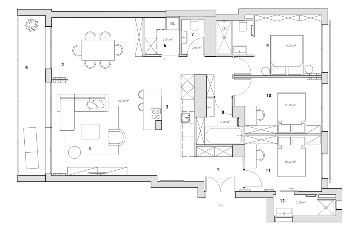
Situé dans un immeuble de standing très bien entretenu, rue Montevideo, gardienné et sécurisé, venez découvrir ce superbe appartement de 4 pièces d’une surface de 104,60 mètres carrés Carrez, traversant et exposé Est-Ouest. Entièrement rénové, il offre des prestations modernes et de grandes qualités.
Il se compose d’un double séjour lumineux avec cuisine ouverte, pensé pour offrir un espace de vie convivial et contemporain, prolongé par un agréable balcon.
L’espace nuit, entièrement tourné vers un jardin calme et ensoleillé, se compose de trois chambres en suite, chacune bénéficie de sa propre salle d’eau ou salle de bains, offrant un confort optimal et une parfaite intimité à chaque occupant. Un WC indépendant vient compléter cet agencement.
Ce bien séduira par ses volumes, sa distribution optimale et le confort d’un appartement rénové, au sein d’un environnement résidentiel recherché.
DPE en cours de réalisation.
Partager l'annonce
Statistiques de l'annonce
Nombre de vues : 3
Dernière visite le : 02/03 à 05:48
Référence : 19297