




Détail de l'annonce
Située dans le quartier du Parc d'Hiver à Biarritz, cette maison familiale sur deux niveaux offre de beaux volumes et un fort potentiel d'aménagement
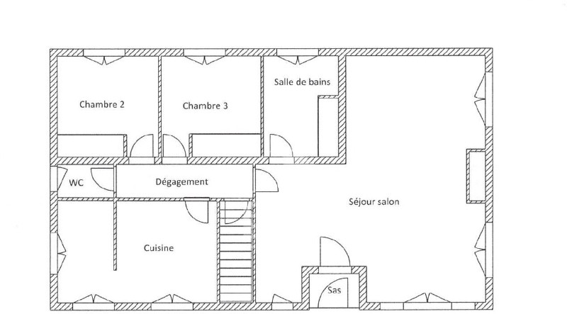
A l'etage vous découvriez une spacieuse pièce de vie lumineuse réunissant salon et salle a manger, une cuisine indépendante , 2 chambres , une salle de bain , toilettes separées.
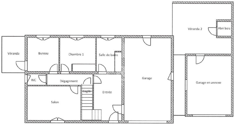
En rez de chaussée, la maison dispose de 2 chambres suplémentaires, 1 bureau, salle d'eau et 2 grandes piéces à aménager selon vos besoins.
Garage de 20m2 et veranda .
Vous profiterez d'un agreable jardin de 700m2
arboré avec piscine et terrasse ! pour profiter des beaux jours en famille .
Véritable atout de ce bien : ses 2 niveaux peuvent etre aménagés en 2 appartements distinct grace a un accés par escalier interieur et exterieur , idéal pour un projet familiale, locatif ou mixte.
Coté confort une pompe a chaleur récente (2024)
le prochain diagnostique énergétique classera le bien en D .
A seulement 5 minutes des plages en voiture
commerces et ransports accessible a pied.
Ce bien à été sélectionné par le consultant officiel de votre région, expert dans l’émission 100% Immo, diffusée sur M6.
(LES VISITES NE SONT PAS FILMÉES).
Annonce rédigée par Malaury Peturaud, agent commercial en immobilier (EI), immatriculée au RSAC de sous le n°44766794000053 – Agissant pour le compte de PROPRIO À TOUT PRIX L'AGENCE (SIREN 929 380 285), titulaire de la carte professionnelle n° CPI 01012024000000020 délivrée par la CCI de l'Ain, sans détention de fonds.
Les informations sur les risques auxquels ce bien est exposé sont disponibles sur le site Géorisques : https://www.georisques.gouv.fr.
PROPRIO A TOUT PRIX L'AGENCE N° ent. : AYCP-12a324ebbd3087c
Partager l'annonce
Statistiques de l'annonce
Nombre de vues : 0
Dernière visite le : 30/04 à 04:00
Référence : 19713